詳細介紹
適用介質
氣、水、油及可燃易爆介質 產品用途 適用條件 結構特點1、 防爆結構:隔爆型。防爆標志;EX : dlBT4。
2、 外殼防護等級為IP45,即防塵5級,防濺水4級。 3、 主閥配置:常規型,采用DF型主閥,型號為ZCSB-(); 耐溫性:采用RSPS主閥,型號為ZCSB-()R;采用PS主閥,型號為ZCSB-()P; 耐腐蝕型:采用2W-J型主閥,型號為ZCSB-()J。 技術參數
產品規格
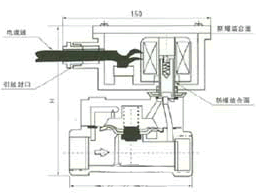
產品結構
|
溫馨提示:“ZCS水用電磁閥/ZCSB飲水機系列防爆電磁閥”所有文字、數據、圖片均只適用于參考。
如需與實物相吻合的性能參數、結構尺寸參數等詳情請來電來函索取。
電話:021-68103333 傳真:021-51686322
如需與實物相吻合的性能參數、結構尺寸參數等詳情請來電來函索取。
電話:021-68103333 傳真:021-51686322

軟密封蝶閥視頻介紹





掃一掃關注我們